Tece Profil châssis encastré pour cuvette suspendue pour les handicapés 9300381
- Producteur: Tece
- Série: Profil
- Disponibilité du produit: sous 10 jours
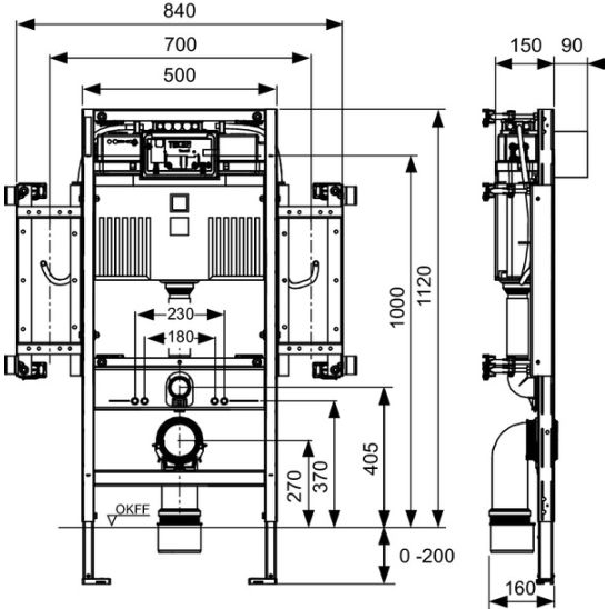
- Hauteur [cm]: 112
- Utilisation spéciale: pour les handicapés
- Inclus: supports de fixation
- Type: pour cuvette suspendue
- Encastrée: légère (pour plaques de plâtre)
- Dimensions avec emballage: 50 x 15 x 112 cm
- Poids avec emballage: 18.927
Description du produit
Module WC à encastrer "easy fit". pour le montage sur les profilés TECEprofil ou dans les murs à profilés cachés ou devant un mur en briques. Pour les constructions sans obstacles avec fixation en céramique surélevée. Module avec cadres latéraux en acier et tubes isolants pour le passage des câbles, avec matériel de montage.
- revêtement de WC pour personnes handicapées
- avec Uni flush
- fixation en céramique pour une hauteur d'assise de 48 cm
- conforme à la norme allemande DIN 18040-1
- hauteur d'installation 1120 mm
- garde-corps de sécurité, hauteur = 760 mm
Actionnement Uni flush par l'avant
- réservoir de sécurité en plastique résistant aux chocs, testé conformément à la norme EN 14055
- réservoir de chasse complètement assemblé et isolé.
- raccordement du réservoir de chasse avec filetage mâle R 1/2 compatible avec les adaptateurs rapides
- capacité du réservoir de 10 litres ; réglage standard du volume de la chasse 6 litres, réglage optionnel du volume de la chasse 4,5/7,5/9 litres ; dans le système de double chasse, il est possible de tirer la chasse avec 3 litres d'eau ; le volume d'eau restant sert à un rinçage de nettoyage immédiat
- isolation contre la condensation de l'eau
- pour les actionneurs de chasse d'eau et l'électronique des toilettes TECE
- option pour une technologie de chasse d'eau simple ou double
- installation d'actionneurs de chasse d'eau "easy fit
- vanne de remplissage hydraulique silencieuse, groupe acoustique 1 selon DIN 4109
Châssis
- autoportant, peint par poudrage
- deux pieds réglables pour le montage au sol dans la plage de réglage 0-200 mm
- deux goupilles de fixation et écrous M 12
- quatre jeux de supports de crémaillère avec réglage en profondeur
- quatre clips multiples pour la fixation au mur TECEprofil
- cadres latéraux en acier pour la fixation des barres transversales sélectionnées
- coude d'évacuation pour WC DN 90 avec adaptateur de raccordement DN 90/100, en PP
- l'adaptateur de raccordement convient également à l'installation horizontale
- jeu de manchons de raccordement L - 300 mm, y compris les bouchons, pour l'installation en céramique
A commander séparément
- jeu de plaques en acier/bois pour la fixation de poignées pliantes de fabricants sélectionnés (selon le nom du fabricant et de la série)
- électronique pour WC (comme la télécommande pour WC TECEplanus ou le bouton de chasse d'eau électronique TECEsolid)
- bouton de chasse d'eau manuel pour WC (voir boutons de chasse d'eau)
- Kit d'extension TECEone pour installation à sec (en option)
Attention :
En cas d'utilisation de céramique pour WC avec une surface de contact réduite (= distance entre la tige de fixation et le bord inférieur de la surface de contact non supérieure à 18 cm) - par exemple : V & B Memento, Subway 2.0 - il est nécessaire d'installer des supports en acier réf. 9041029 dans la partie inférieure de l'installation. Selon le fabricant, le câblage caché peut ne pas être possible pour certains rails pivotants.
Détails sur le produit
Détails du fabricant
Questions et réponses (0)
Vous n'avez pas trouvé la réponse à votre question?









































